Prodej moderního bungalovu v Mále Hraštici, OV, 4+kk

Malá Hraštice

8 998 000,- za nemovitost

Kateřina Kavalírová

Telefon

Telefon:

774505503

Kontaktovat

Finanční kalkulačka

Mám zájem

Popis nemovitosti

NOVOSTAVBA 4+kk s krásnou zahradou, terasou a parkováním – Malá Hraštice, 20 min od Prahy

Hledáte moderní bydlení v klidném prostředí přírody, ale s rychlou dostupností do Prahy? Právě pro vás je zde tento bezbariérový rodinný dům o dispozici 4+kk v Malé Hraštici u Mníšku pod Brdy.

Jedná se o bungalov (součást dvojdomu) ve velmi klidné lokalitě. Dům je starý pouze 5,5 roku a je ve velmi dobrém stavu, připravený k okamžitému nastěhování.

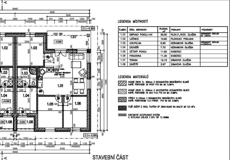
Zastavěná plocha domu činí 116 m², užitná plocha 98 m² a pozemek má celkovou výměru 446 m². Součástí je terasa a parkování až pro 3 vozy přímo na pozemku.

Dispozice domu nabízí prostorný a světlý obývací pokoj s kuchyňským koutem a jídelnou, tři samostatné pokoje, koupelnu s prostorem pro pračku, samostatné WC a vstupní halu. Kuchyň je plně vybavena (trouba, sklokeramická deska, myčka).

Zahrada je krásně osázená vzrostlými stromy a poskytuje dostatek soukromí i prostoru pro relaxaci – ideální pro bazén, vířivku nebo rodinné posezení na terase.

Dům je zděný, kvalitně zateplený (160 mm), okna s trojskly, izolace stropu 280 mm. Energetická náročnost B zaručuje nízké provozní náklady (cca do 2 800 Kč/měsíc pro 4člennou domácnost). Vytápění je řešeno přímotopy, v koupelně topný žebřík. Dům je napojen na elektřinu, vodovod a kanalizaci.

Výborná dopravní dostupnost: Praha cca 20 minut autem, MHD 5 minut pěšky, vlak 2 minuty pěšky. V obci veškerá občanská vybavenost – škola, školka, obchody, restaurace. Okolí nabízí krásnou přírodu, lesy, cyklostezky i golfová hřiště.

Jedna z posledních příležitostí k bydlení v této vyhledávané lokalitě v blízkosti Prahy.

Subtyp nemovitosti

4+kk

Vydaný certifikát PENB

B - Velmi úsporná

Typ certifikátu PENB

č. 264/2020 Sb.

Konstrukce

Cihlová

Město

Malá Hraštice

Operace

Prodej

Parkovací místa

3

Plocha podlahová

98 m2

Plocha užitná

98 m2

Stav objektu

Novostavba

Typ nemovitosti

Byt

Umístění objektu

Klidná část obce

ID nemovitosti

3250

Mapa umístění nemovitosti